Bingo Billares. Barcelona
Amb FLEXO Arquitectura
El projecte de l’edifici d’habitatges i CAP a Gran Via de les Corts Catalanes redefineix l’espai urbà mitjançant una reinterpretació de l’Eixample. La façana presenta una repetició del forat de proporció vertical, amb estratificació del tamany dels forats en funció de la planta: més grans a la planta baixa, altell i primera per al caràcter públic del CAP, i més petits en les plantes superiors per als habitatges. Es combina ceràmica en la base i morter SATE a la resta, amb balcons lleugers «penjants» que aporten textura a la façana.
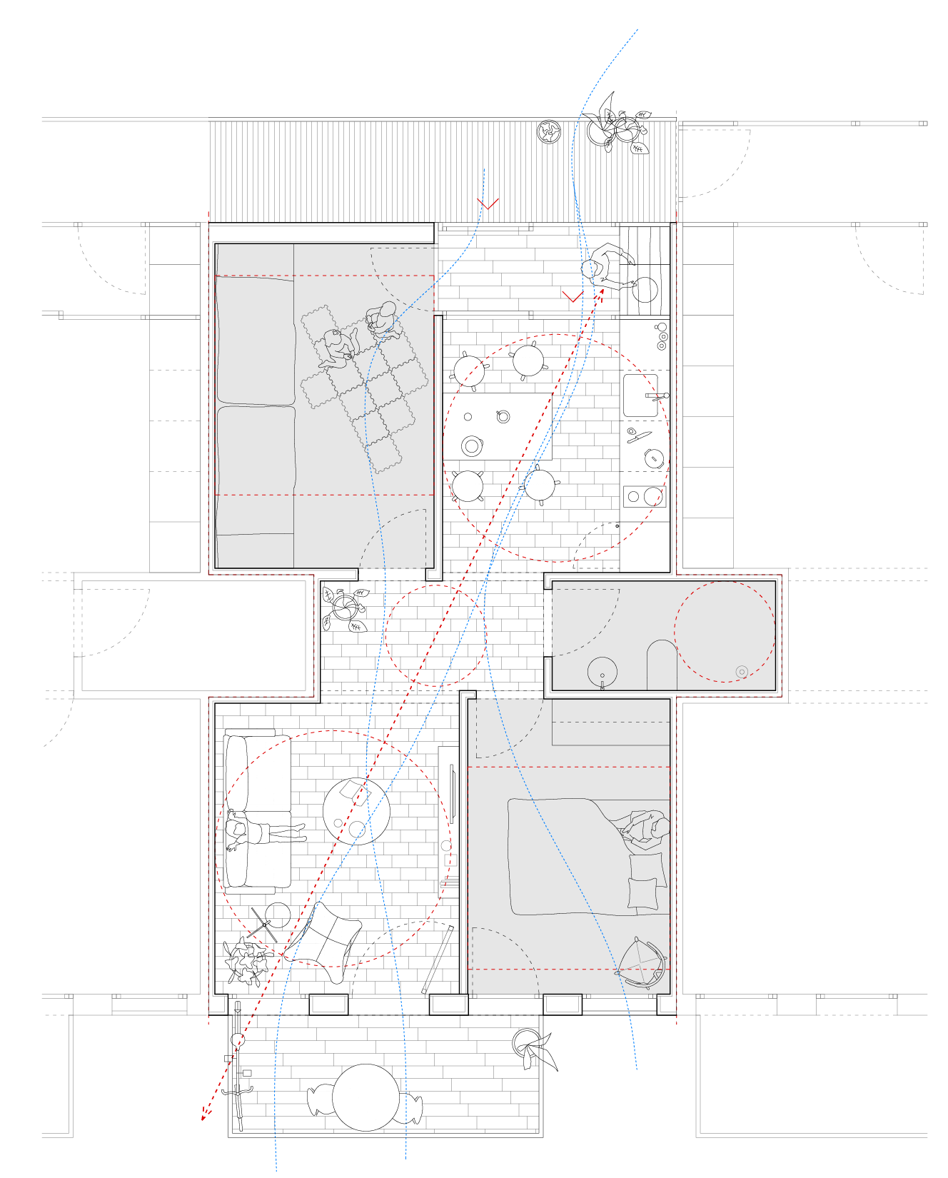
L’edifici s’organitza en tres volums al voltant d’una plaça central, creant un espai col·lectiu on els habitatges s’accedeixen per passeres il·luminades naturalment, afavorint la ventilació creuada. Els 79 habitatges, flexibles i inclusius, es distribueixen en tipologies adaptables amb espais polivalents. La coberta enjardinada i les solucions energètiques innovadores (plaques solars, aerotèrmia) asseguren un consum energètic mínim, mentre que els materials reciclats i sostenibles contribueixen a un cicle de vida reduït en CO₂
Concurs d’edifici d’habitatges + CAP a Gran Via de les Corts Catalanes 724-726, Barcelona.
Arquitectura Mariona Benedito + FLEXO arquitectura
Consultors AIA (Inst), Manuel Arguijo (est), Societat Organica (sos), GruArt (arq tec), Ivana Rossell (acustica)
Promotor IMHAB
Concurs 5è Premi
Any 2021
Col·laboradors Miquel Benedito, Jakub Fratczak, Luis Tresaco








