Can Fabra
Amb Josep Benedito i Martí Sanz
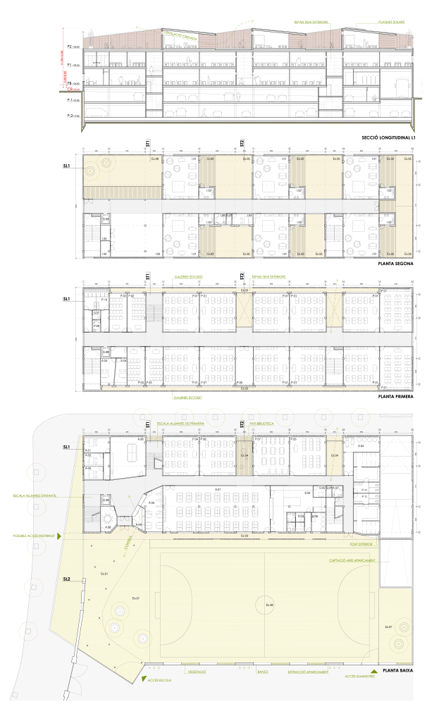
El volum que es corona de manera inclinada suggerint la forma corresponent a 3 naus i utilitza el totxo ceràmic com a material bàsic, adquirint d’aquesta manera, una forma global i un caràcter afí al tipus de construcció característica de la industria tèxtil catalana en que s’emmarca Fabra i Coats.
No es tracta d’una solució mimètica sinó d’una harmonització amb el context ja que les diferències derivades de la composició de les façanes, distribució i dimensió de les obertures i la utilització de la gelosia vertical del mateix material que adquireix una expressió diferent segons estigui tancant un espai a l’aire lliure, o un porxo, o una galeria o simplement formant una protecció mecànica i solar sobre les obertures, caracteritza plenament l’envolvent del nou edifici escolar amb una imatge pròpia.
Escola d’Educació Infantil i Primària a Can Fabra, Barcelona
Concurs 2ona Puntuació
Estat Inactiu
Lloc Sant Andreu, Barcelona
Data 2011
Promotor Bimsa, Consorci d’Educació de Barcelona
Arquitectura Mariona Benedito + Josep Benedito + Martí Sanz
Estructures Manuel Arguijo
Instal.lacions RCE Enginyers
Aparellador Miquel Milian, Ana Bono
Col.laboradors Filippo Sapienza
Imatge Play-time
Sup. Construïda 8.697,00 m2







