Dupplo
Amb FLEXO arquitectura
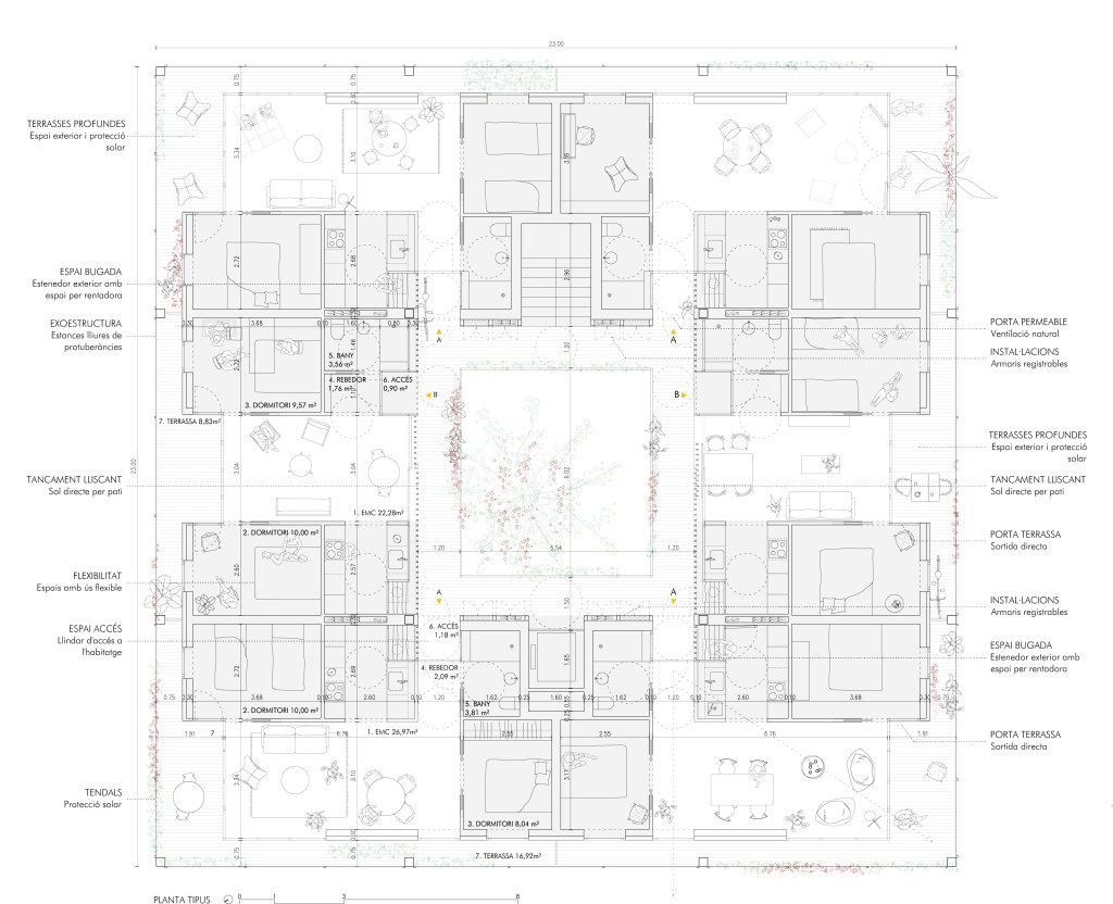
El projecte potencia les relacions col·lectives organitzant els habitatges al voltant d’un atri central. A planta baixa, l’atri es converteix en un jardí, mentre que a les plantes superiors articula les passeres d’accés, creant espais tranquils, ventilats i assolellats que garanteixen la il·luminació i ventilació natural creuada dels habitatges. Es proposa cobrir l’atri amb una coberta de vidre adaptable a les estacions per optimitzar l’eficiència energètica. L’accés a l’edifici es realitza a través d’una seqüència de llindars oberts i porxats. L’organització interna és flexible, amb un sistema d’anelles concèntriques que separen les zones de serveis de les de convivència. La cuina es planteja com a espai obert i dinamitzador, mentre que el menjador ocupa el centre de l’habitatge. Els dormitoris (10m\’b2) són polivalents i permeten diferents combinacions. El jardí, amb plantes autòctones de baix consum hídric, es concep com un espai comunitari que es vincula amb la rambla verda del carrer Josep Pla.
Concurs d’un edifici de 38 habitatges al carrer Josep Plà parcel·la 8, Can Rovira, Polinyà
Arquitectura Mariona Benedito + FLEXO arquitectura
Consultors Societat Orgànica (sostenibilitat), Otherstructures (estructures), Albert Brufau (arq tècnica) i Quadrant (instal·lacions)
Promotor INCASÒL
Concurs 3er Premi
Any 2021
Col·laboradors Luis Tresaco, Freddie León









