Escletxa Urbana
Amb FLEXO arquitectura
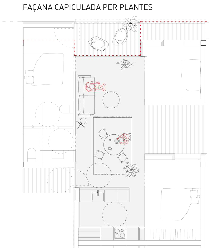
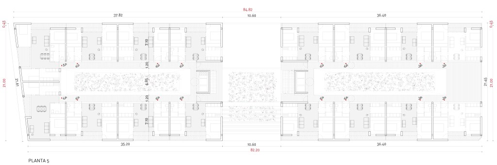
El projecte busca intensificar la connectivitat entre els carrers perimetrals i el jardí interior assolellat. Per això, es maximiza la façana comercial al llarg del carrer principal i la rotonda, i l’entrada es situa a la façana sud, en contacte amb la zona enjardinada, a través de passos porxats. El volum es fragmenta amb una escletxa central i buidats estratègics per millorar la captació solar, ventilació i visuals. Les relacions col·lectives s’intensifiquen mitjançant passeres d’accés tranquil·les i ventilades que garanteixen ventilació i llum natural a tots els habitatges. Aquestes passeres es converteixen en espais intermedis que connecten els habitatges amb l’exterior. Els 140 habitatges es configuren de manera flexible, amb espais polivalents (8-10 m²) i estades obertes, adaptant-se a les necessitats dels usuaris (3-5 persones). Les cuines són obertes però segregables, i tots els banys tenen ventilació natural directa. Les tipologies varien entre centrals, de cantonada i ubicades a l’escletxa.
Segona fase Concurs 140 habitatges HPO al Sector de Llevant de Viladecans
Arquitectura Mariona Benedito + FLEXO arquitectura
Consultors Societat Orgànica (sostenibilitat), Otherstructures (estructures), Albert Brufau (arq tècnica) i Quadrant (instal·lacions)
Promotor INCASÒL
Concurs 3er Premi
Any 2021
Col·laboradors Julia Dubois, Luis Tresaco, Freddie León
Renders amfibio.ar









