Fang 1
Amb FLEXO arquitectura
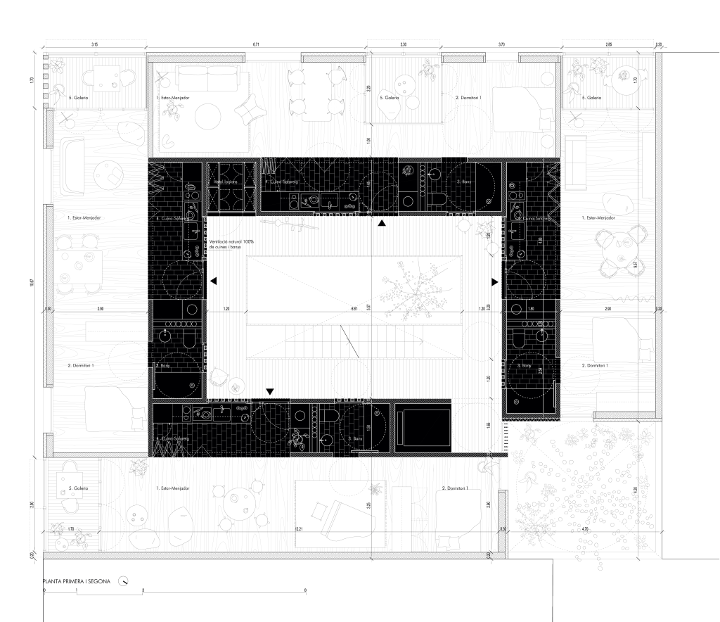
El projecte fomenta les relacions col·lectives organitzant els habitatges al voltant d’un atri central. En planta baixa, l’atri és un jardí, i a les plantes superiors actua com a passera d’accés, creant espais de relació tranquils, ventilats i assolellats, amb il·luminació i ventilació natural creuada per a tots els habitatges. S’ha plantejat la possibilitat de cobrir l’atri amb una coberta dinàmica de vidre, adaptable a les estacions per maximitzar els beneficis energètics. L’accés es defineix amb una seqüència de llindars oberts i porxats. L’organització dels habitatges és flexible, amb una distribució en anelles concèntriques que separen les zones humides i seques. Els habitatges disposen de cuines obertes i dinàmiques, menjadors centrals i dormitoris (10m²) que poden variar en organització. Per reduir la demanda energètica, es prioritza la ventilació natural, l’assegurança solar i l’ús d’energies renovables, amb sistemes de calefacció eficients i captació solar tèrmica.
Concurs d’idees per a un avantprojecte de 12 habitatges de protección pública (HPP) al carrer Juli Ramis 5, cantonada carrer Sebastià Seguí 10, de Marratxí, Mallorca.
Arquitectura Mariona Benedito + FLEXO arquitectura
Consultors Societat Orgànica (sostenibilitat), Otherstructures (estructures), Albert Brufau (arq tècnica) i Quadrant (instal·lacions)
Promotor IBAVI
Any 2020
Col·laboradors Luis Tresaco, Freddie León








