Habitatges d’Emergència
Amb Martí Sanz
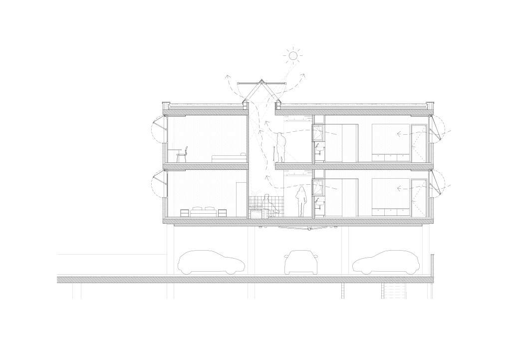
El projecte de reciclatge urbà busca reactivar les dues últimes plantes d’un edifici de usos mixtos (comerç, aparcament i oficines) que van quedar a mig construir durant la crisi econòmica. Aquestes plantes, d’uns 86 x 15 m, amb estructura de pilars de formigó armat i losa reticular, es reprogramen per donar resposta a l’emergència habitacional actual.
Es practiquen tres buits que travessen l’edifici, aportant llum natural i ventilació creuada, i establint una connexió espacial entre les dues plantes. Aquests buits es transformen en bancs I jardineres a la planta inferior, balcó a la superior i claraboia a la coberta, millorant les qualitats ambientals i creant un espai de convivència. A més, es millora el trànsit entre el carrer i l’espai privat, generant un lloc funcional i accessible que fomenta la relació social. Amb aquestes intervencions, el projecte revitalitza l’espai i l’adapta a les necessitats del context urbà actual.
34 Habitatges dotacionals a Sant Feliu de Llobregat
Estat: Construït
Lloc: carrer del Pla 2F de Sant Feliu de Llobregat
Data: 2017-22
Promotor: IMPSOL.AMB
Arquitectura tècnica: Alba Subirada (Gruart)
Arquitectura: Martí Sanz + Mariona Benedito
Estructures: Manuel Arguijo
Instal.lacions: AIA
Col.laboradors: Xavi Isart, Clara Vidal
Constructor: Archs + Voracys
Fotografia: José Hevia
Sup. Construïda: 2.474,05 m2
Pem: 1.521.535,85 €


















