Un Oasis en Marte
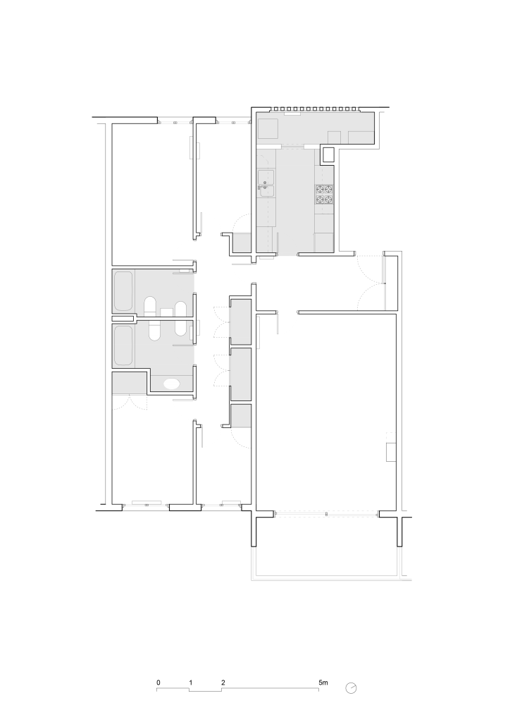
Reforma d’un pis a Sant Andreu de Llavaneres, al Port del Balís, situat en un complex residencial tancat de 1973. L’habitatge es troba en una zona residencial de teixit urbà dispers, envoltada d’altres complexos i urbanitzacions d’adossats. L’objectiu de la intervenció és Transformar un habitatge d’estiueig en una primera residència, reestructurant la distribució original de passadissos i petites habitacions en un estudi per a una sola persona.
La intervenció es planteja en dues fases: la primera consisteix en un exercici d’acupuntura per oxigenar i permeabilitzar la distribució original. Se substitueixen els tancaments tradicionals per elements lleugers, com cortines, per obrir l’habitatge al mar, les brises i les vistes. La segona fase se centra en la transformació de l’habitació principal, el vestidor i el bany. La intervenció genera un nou llenguatge a 45º, aplicat al paviment, les fusteries, el mobiliari i la finestra interna, generant un nou llenguatge que se superposa a l’original.
Reforma d’un habitatge a Sant Andreu de Llavaneres
Lloc Sant Andreu de Llavaneres
Data 2025
Col.laboradors Sergio Azpíroz i Cristina Marcos
Constructor Barto Giménez Feliu i Hnos Villanueva (fusteria)






