Ampliació Escola Pla de l’Avellà, Cabrera.
Amb Sumo Arquitectes i Martí Sanz
- Lloc Avinguda Burriac 33, Cabrera de Mar
- Data 2022-2024
- Promotor Infraestructures.cat
- Arquitectura MIM-A Arquitectes + SUMO Arquitectes
- Estructures Otherstructures SLP
- Instal.lacions Quadrant Enginyeria
- Constructor CRC Obras y Servicios SL
- Fotografia Aitor Estévez
- Sup. Construïda 1.575 m²
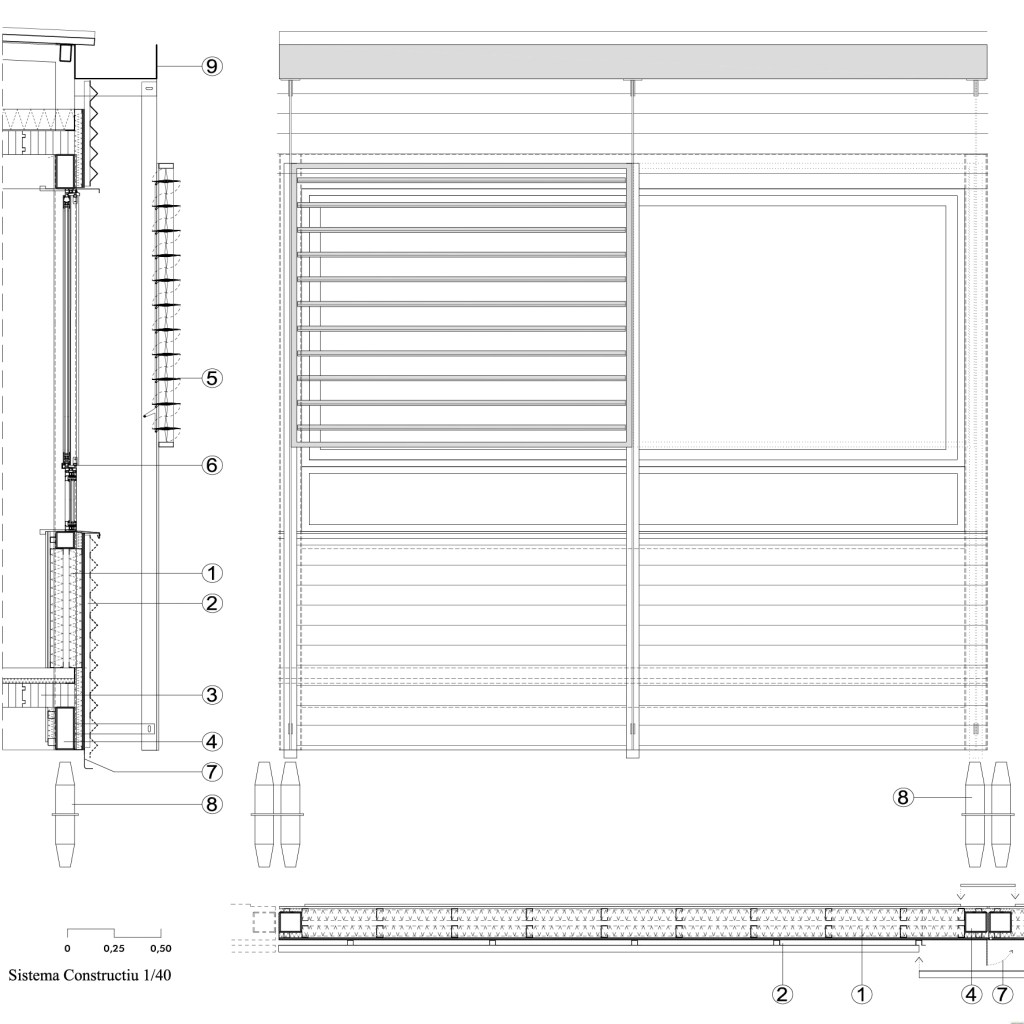
El projecte es basa en un sistema constructiu modular que optimitza la construcció i permet una gran flexibilitat en l’ús dels espais.
Estructura d’acer i sostres de CLT, façanes i cobertes ventilades amb full interior lleuger acabades amb xapa d’alumini natural.
Les ampliacions son geomètricament senzilles, i es col.loquen de la manera més òptima per a connectar-se amb les escoles existents, per ampliar-les fins a Escola-Institut.
A la planta baixa, una pèrgola senzilla complementa l’ampliació, oferint un espai exterior protegit que millora el confort dels usuaris. Aquesta intervenció respon a les noves necessitats educatives de l’escola.





















